
建筑樓宇
安科瑞電力監控系統在居民小區變配電項目中的應用
【摘要】:本文主要通過安科瑞電氣股份有限公司承建的成都東苑小區變配電監控系統項目,介紹當前國內主流的配電自動化監控系統的結構、系統配置、與傳統人員值班監視的對比以及它的功能實現等。
【關鍵詞】:電力監控軟件;網絡電力儀表;中建二局;小區配電;配電自動化;
項目概述
中建二局投改項目(成都東苑小區高低壓配電系統項目)電力監控系統位于成都高新區桂溪路123號,建筑性質為居民住宅。該項目共有兩個配電房:高壓配電房、低壓配電房?,F場高壓部分采用的是西門子7SJ68的微機保護裝置,設備數量為9只;低壓部分變壓器出線采用PMAC720電力儀表,低壓各支路采用PMAC600-B,低壓部分的儀表總數為90只。高壓配電房與低壓配電室相距約300米。
本項目在配電系統的監視方面擁有兩個方案,方案一是傳統的人工監視,方案二是借助配電監控系統后臺監視,人員輔助即可。
結合本項目,采用兩種方案的優劣分析如下:
|
方案 功能 |
方案一傳統人工監視 |
方案二后臺監視 |
|
實時性 |
人工抄錄,1小時一次,耗費人力 |
計算機實時采集,1次/秒,實時性強 |
|
存儲管理 |
紙質記錄,再錄入計算機,二次耗費人力,且易出錯,數據日期管理復雜 |
計算機存儲,數據可存儲10年以上,查詢速度快,記錄準確。 |
|
數據安全 |
分散管理,手工定時備份,對連續數據備份不準確 |
同步集中管理,系統自動即時備份,數據完全自動更新備份 |
|
設備管理 |
各個抽屜柜回路通斷電要現場去查看,斷電時無報警 |
通過后臺一次系統圖清晰展示,回路跳閘時,后臺自動記錄,并伴隨自動報警 |
經衡量,用戶決定采用方案二對其配電系統進行自動化管理。同時用戶也對該自動化配電管理系統后臺提出了幾點需求。
用戶需求
承建方設計參照標準
設計方案
現場高壓部分采用的是西門子7SJ68的微機保護裝置,設備數量為9只;低壓部分變壓器出線采用PMAC720電力儀表,低壓各支路采用PMAC600-B,低壓部分的儀表總數為90只。高壓配電房與低壓配電室相距約300米?,F場儀表均采用符合電力行業的標準Modbus-RTU通訊協議。監控后臺放置在高壓配電室。安科瑞電氣股份有限公司于2012年4月份承建了成都東苑小區的智能配電監控系統項目,根據成都東苑小區的實際情況為其量身定制了一套ACREL-2000電力監控系統。
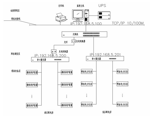
整個系統設計了一套Acrel-2000電力監控系統,采用分層分布式結構,即現場設備層、網絡管理層、監控管理層?,F場設備為采集現場各回路電力系統運行參數,包括電流、電壓、功率等遙測信息以及斷路器分合閘狀態以及故障等開關量狀態;網絡管理層主要包括通訊管理機、光電轉換設備、交換機等,負責數據的上傳及指令的下達;監控管理層為整個系統的核心,所有數據的存儲、電力系統的運行狀況的顯示、控制指令的下達均通過該部分完成。
詳細設備組網方案:
Acrel-2000軟件功能介紹
友好的人機交互界面(HMI)
標準的變配電系統具有CAD一次單線圖顯示中、低壓配電網絡的接線情況;龐大的系統具有多畫面切換及畫面導航的功能;分散的配電系統具有空間地理平面的系統主畫面。主畫面可直觀顯示各回路的運行狀態,并具有回路帶電、非帶電及故障著色的功能。主要電參量直接顯示于人機交互界面并實時刷新。
用戶管理
本軟件可對不同級別的用戶賦予不同權限,從而保證系統在運行過程中的安全性和可靠性。如對某重要回路的合/分閘操作,需操作員級用戶輸入操作口令外,還需工程師級用戶輸入確認口令后方可完成該操作。
數據采集處理
Acrel-2000型電力監控系統可實時和定時采集現場設備的各電參量及開關量狀態(包括三相電壓、電流、功率、功率因數、頻率、電能、溫度、開關位置、設備運行狀態等),將采集到的數據或直接顯示、或通過統計計算生成新的直觀的數據信息再顯示(總系統功率、負荷值、功率因數上下限等),并對重要的信息量進行數據庫存儲。
趨勢曲線分析
系統提供了實時曲線和歷史趨勢兩種曲線分析界面,通過調用相關回路實時曲線界面分析該回路當前的負荷運行狀況。如通過調用某配出回路的實時曲線可分析該回路的電氣設備所引起的信號波動情況。系統的歷史趨勢即系統對所有已存儲數據均可查看其歷史趨勢,方便工程人員對監測的配電網絡進行質量分析。
報表管理
系統具有標準的電能報表格式并可根據用戶需求設計符合其需要的報表格式,系統可自動統計??勺詣由筛鞣N類型的實時運行報表、歷史報表、事件故障及告警記錄報表、操作記錄報表等,可以查詢和打印系統記錄的所有數據值,自動生成電能的日、月、季、年度報表,根據復費率的時段及費率的設定值生成電能的費率報表,查詢打印的起點、間隔等參數可自行設置;系統設計還可根據用戶需求量身定制滿足不同要求的報表輸出功能。
事件記錄和故障報警
系統對所有用戶操作、開關變位、參量越限及其它用戶實際需求的事件均具有詳細的記錄功能,包括事件發生的時間位置,當前值班人員事件是否確認等信息,對開關變位、參量越限等信息還具有聲音報警功能,同時自動對運行設備發送控制指令或提示值班人員迅速排除故障。
五遙功能
Acrel-2000型電力監控系統不僅能實現常規的“遙信”、“遙控”、“遙測”、“遙調”功能,還可以實現“遙設”功能。
系統在項目上運行記錄
軟件顯示界面-1#變壓器:
低壓一次圖
軟件顯示界面-高壓一次側:以一次圖形式直觀動態顯示電壓、電流、功率、功率因數及頻率等監測信息,開關狀態直接以顏色區分顯示在界面上(紅色表示合閘,綠色表示分閘)。配電現場的情況一目了然。
高壓一次圖
軟件顯示界面-趨勢曲線:實現了用戶所要求的通過對各配電回路的電壓、電流或功率繪制趨勢曲線,分析該回路配電運行工況,負荷趨勢曲線提供了某一段時間內該回路的負荷趨勢,方便管理員掌握用電設備的運行狀況,對存在故障隱患的設備及時提出整改,對不合理用電單位提出科學合理的改進。
日報表
任意時段抄表
電能匯總報表,列出每日用戶電能數據,方便客戶查詢和打印。根據業主需求可以查看日報表、月報表、年報表,清晰了解各用戶在某一時間段內的用電狀況,方便了管理員的用電管理。
結束語
該項目所采用的系統方便實時地監控配電系統的運行狀態,對現場的用電設備進行統一管理,免去工作人員到現場記錄的繁瑣工作,運行穩定、安全,方便了管理員對用戶用電便捷、準確化管理,為管理者進行內部計量考核做出了依據,亦為進一步的節能管理及節能措施的實施打下了基礎。

蘇公網安備 32028102001347號
技術支持:江蘇安科瑞電器制造有限公司 電流傳感器| 多用戶儀表