
ARCM電氣火災監控裝置
ARCM310智慧安全用電監控裝置
ARCM310智慧用電在線監控裝置(以下簡稱裝置)是針對0.4kV以下的TT、TN系統設計的智能電力裝置,具有單相交流電測量、漏電監測、溫度監測、分合閘控制以及RS485通訊或GPRS無線通訊功能,通過對配電回路的剩余電流、導線溫度等火災危險參數實施監控和管理。
裝置采用微控制器技術,集成度高,體積小巧,安裝方便,集智能化,數字化,網絡化于一身,是建筑監控裝置預防監控、系統絕緣老化預估等的理想選擇。作為一種先進的智能化、數字化的采集元件,該裝置已廣泛應用于學校、醫院、商場、銀行、古建筑等眾多場所。
ARCM310智慧用電在線監控裝置(以下簡稱裝置)是針對0.4kV以下的TT、TN系統設計的智能電力裝置,具有單相交流電測量、漏電監測、溫度監測、分合閘控制以及RS485通訊或GPRS無線通訊功能,通過對配電回路的剩余電流、導線溫度等火災危險參數實施監控和管理。
裝置采用微控制器技術,集成度高,體積小巧,安裝方便,集智能化,數字化,網絡化于一身,是建筑監控裝置預防監控、系統絕緣老化預估等的理想選擇。作為一種先進的智能化、數字化的采集元件,該裝置已廣泛應用于學校、醫院、商場、銀行、古建筑等眾多場所。
命名規則:
參考標準:
■ GB/T 17215.211-2006《交流電測量設備 通用要求、試驗和實驗條件 第11部分:測量設備》
■ GB/T 17215.321-2008《交流電測量設備 特殊要求 第22部分:靜止式有功電能表(1級和2級)》
■ GB14287.2-2014 《電氣火災監控系統 第2部分 剩余電流式電氣火災監控探測器》
■ GB14287.3-2014 《電氣火災監控系統 第3部分 測溫式電氣火災監控探測器》
技術指標:
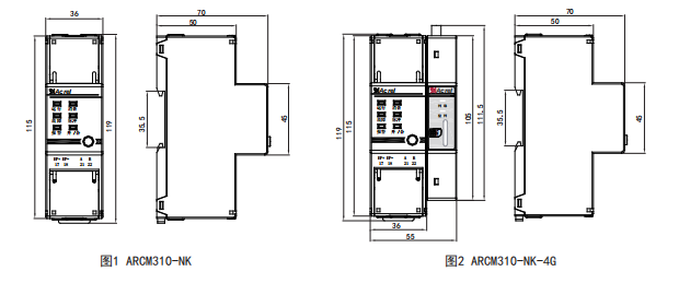
ARCM310型智慧用電在線監控裝置的外形與安裝尺寸(單位:mm)如下圖所示
應用接線圖
安裝要求:
● 此儀表應安裝在現場無線信號良好的地方;
● 必須讓具有資格的安裝人員安裝此儀表,并且安裝之前要仔細閱讀使用說明;
● 接線時按照使用說明中的接線方式接線,接線完成后要認真核對接線是否正確,以免通電后損壞探測器、
產生危險事故;
● 安裝或拆除儀表時,請確認工作電源、待測母線及相關部分電源已切斷以免發生觸電,造成危險和人員傷
害;
● 接線、布線請按相關規范要求,以免發生短路、斷路等事故,同時也方便日后的維護和檢修;
● 儀表的正常運行依賴于正確的安裝、設置和操作,安裝之前請詳細閱讀安裝、設置和操作的相關內容,以
保證儀表的正常運行
典型應用示意圖:
保護器可以通過自帶的RS485接口進行組網,然后將數據通過總線上傳到監控主機,也可以通過無線通訊的方式直接將數據上傳到云平臺
安全用電管理云平臺及手機app
產品推薦

蘇公網安備 32028102001347號
技術支持:江蘇安科瑞電器制造有限公司 電流傳感器| 多用戶儀表